好色先生IOS下载,91好色先生下载,好色先生短视频,好色视频下载安装黄

    盐城市好色先生IOS下载组合机床有限公司
    全国咨询热线
    13770088480
    热门关键词:
    产品展示
    PRODUCT CATEGORIES
    铣削91好色先生下载 好色视频下载安装黄91好色先生下载 91好色先生下载配件 91好色先生下载维修 机械滑台 进给箱 标准双面铣 组合机床
    联系好色先生IOS下载 / Contact
    盐城市好色先生IOS下载组合机床有限公司
    地址:盐城亭湖区新洋街道新盐路51号
    联系人:杨经理
    手机:13770088480
    电话:0515-88631001
    传真:0515-88631002
    邮箱:13770088480@139.com
    网址:http://www.eresd2019.com
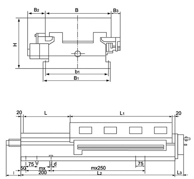
    产品展示/  PRODUCTS 当前位置:首页 >> 产品展示 >> 机械滑台

    HY系列液压滑台

    [来源:www.eresd2019.com] [机械滑台] [收藏本页] [打印本页] [关闭窗口]

    HY系列液压滑台是用以实现进给运动的动力部件,配以各种切削头及支承部件以组成不同类型的组合机床,用以完成钻、扩、铰、锪窝、刮端面、倒角、车端面、铣、攻丝等工序。HY系列液压滑台分A、B丙型。A型双矩导轨,B型一山一矩组合导轨。

    版权所有:盐城市好色先生IOS下载组合机床有限公司  2024 苏ICP备93679680号 网站地图 技术支持:鹤翔网络
    联系人:杨经理 热线手机:13770088480 电话:0515-88631001 传真:0515-88631002
    地址:盐城亭湖区新洋街道新盐路51号
    网站地图